Motherson

Proyecto de oficinas corporativas en torre aeropuerto.

Reuniones en llamada, videollamadas, visitas presenciales en planta y showroom Spazzio Modular.

El cliente llegó con un diseño arquitectónico y a nosotros nos tocó rectificar el área y perfeccionarlo:

Motherson
Motherson

Servicios

Diseño arquitectónico

Diseño de Renders

Diseño de mobiliario a la medida

Motherson

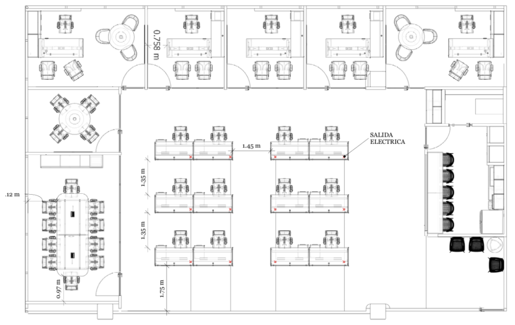
Áreas Implementadas

  • Recibidor
  • Área operativa
  • Oficinas dirección
  • Oficinas gerenciales
  • Sala de juntas
  • Cocina y área de copiado
Motherson

Tiempo de ejecución: 6 semanas

Problemas que se resolvieron:

El cliente necesitaba que el acomodo fuera en un solo sentido.

Los colores tenían que ser únicamente blanco y tonalidades grises.

No utilizar o minimizar el uso del color negro por lo tanto se tuvo que customizar las bases de piezas en los colores estipulados.

Se les suministro necesidades específicas como electrodomésticos y electrónicos.

Buscamos apoyarlos en igualar las oficinas de otra locación para que cumplieran con los requisitos institucionales.

Motherson

Mobiliario

Listado del mobiliario que se integró en el proyecto.

Cocineta

Área de almacenamiento y blancos

Área de almacenamiento y blancos

Barra desayunadora

Barra desayunadora

Área de impresión

Área de impresión

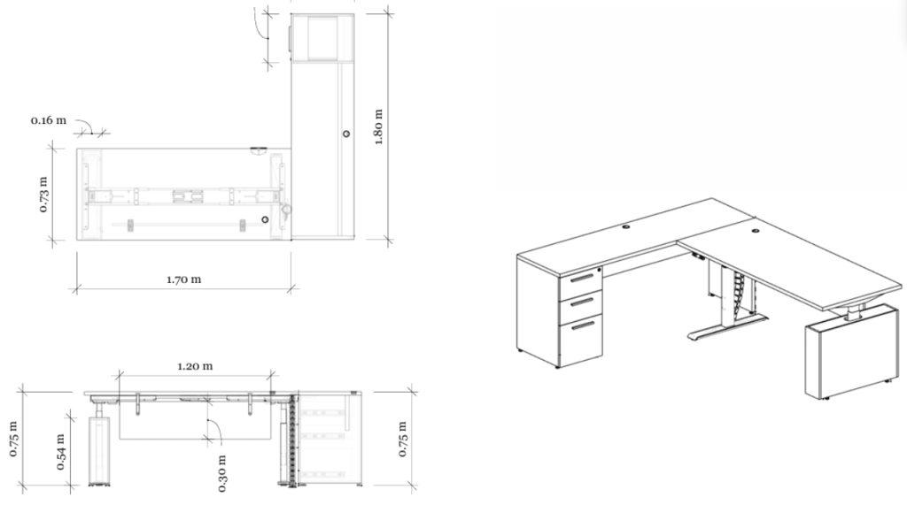
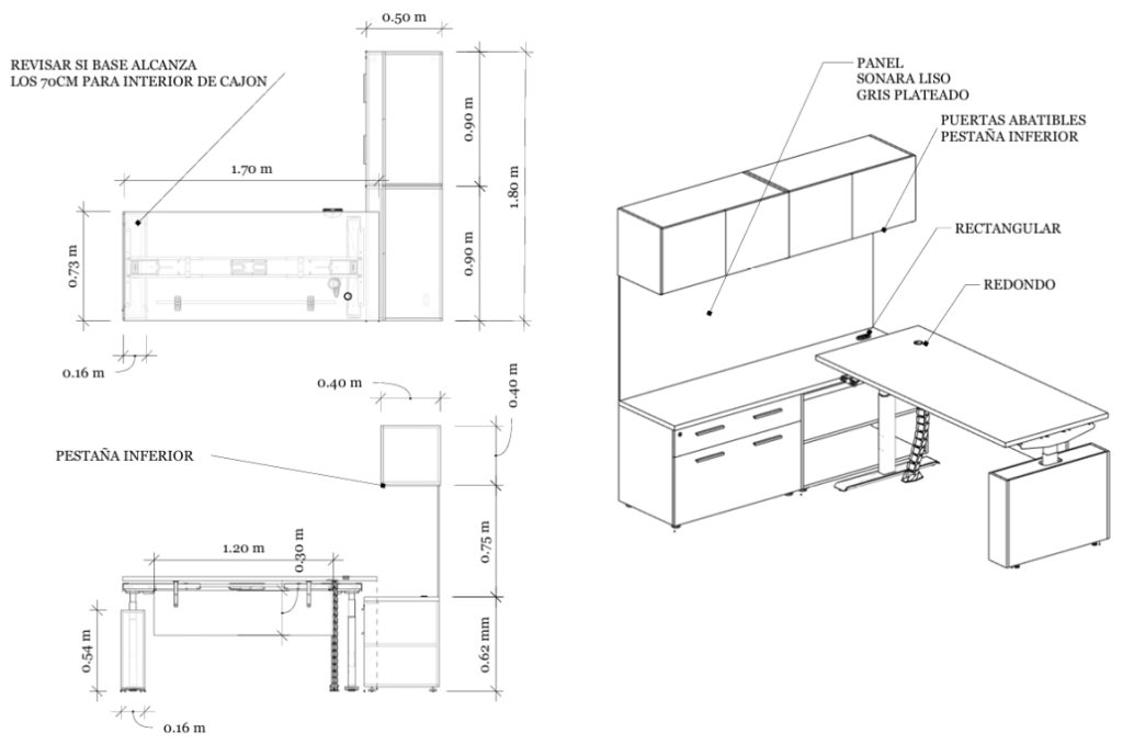
Oficinas directivas

Oficinas directivas

Oficinas gerenciales

Contacto

Cotiza tu proyecto

Oficinas

Av. José Eleuterio González #202 Col. Vista Hermosa, Monterrey, N.L.

Sucursal Gonzalitos

Horarios

Lunes a Viernes: 9:00hrs a 19:00hrs
Sabado: 10:00hrs a 14:00hrs

Showroom

Inicia tu proyecto con nosotros

Nombre