Metalsa

Proyecto de oficinas para el área operativa del horno de fábrica de chasises.

El proyecto en su totalidad está diseñado a la medida y customizado para el cliente.

Metalsa
Metalsa

Servicios

Diseño arquitectónico

Diseño arquitectónico

Diseño de Renders

Diseño de mobiliario a la medida

Diseño arquitectónico

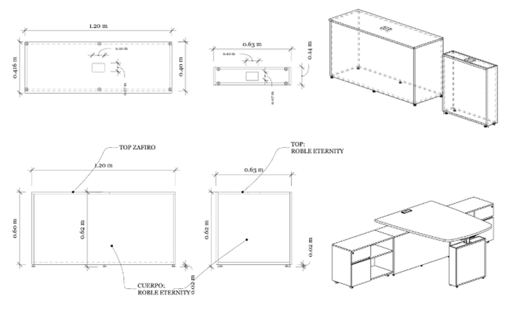
Dibujos técnicos para la fabricación de los componentes

Diseño de mobiliario a la medida

Cocina
Metalsa

Áreas Implementadas

  • Dos pisos con área operativa
  • Comedor
  • Cocina
  • Sala de juntas
  • Oficinas “one to one”
  • Sala de capacitación
  • Área wellness
Metalsa

Tiempo de ejecución: 3 meses

Problemas que se resolvieron:

El usuario final era operativo y necesitaba que el mobiliario fuera de alto tráfico para uso industrial sin perder lo estético.

Utilizar colores institucionales.

Se les suministro necesidades específicas como electrodomésticos y electrónicos.

Cumplir los lineamientos de la empresa.

Todos los usuarios tenían que tener 1.50cm de largo para trabajar.

En el área de juegos se fabrico todo muy customizado a petición del cliente.

Metalsa

Mobiliario

Listado del mobiliario que se integró en el proyecto.

Oficinas “one to one”

Oficinas “one to one”

Cocineta

Cajoneras móviles

Estaciones de trabajo

Cajoneras móviles

Cajoneras móviles

Mesas altas

Mesas altas

Lambrin decorativo

Juguetero área wellnes

Juguetero área wellnes

Mesa de centro área wellness

Fachada Metalsa

Contacto

Cotiza tu proyecto

Oficinas

Av. José Eleuterio González #202 Col. Vista Hermosa, Monterrey, N.L.

Sucursal Gonzalitos

Horarios

Lunes a Viernes: 9:00hrs a 19:00hrs
Sabado: 10:00hrs a 14:00hrs

Showroom

Inicia tu proyecto con nosotros

Nombre