Joyson

Diseño y fabricación de oficinas en planta industrial.

Primeramente se realizó una visita para que se nos explicara el proyecto a realizar, se tomó nota de todo lo necesario.

Se realizaron las propuestas basadas en las necesidades del cliente.

Joyson
Joyson

Servicios

Diseño Arquitectónico

Diseño de Renders

Diseño de mobiliario a la medida

Joyson

Áreas Implementadas

Se implementaron áreas operativas, conformadas por:

  • Mamparas altas tapizadas en tela
  • Escritorios empotrados con cajoneras
  • Sillas operativas
  • Mesas de juntas
  • Credenzas a diseño
  • Persianas black out
  • Escritorios en escuadra
  • Sillas de visitantes
Joyson

Tiempo de ejecución: 3 meses

Problemas que se resolvieron:

El usuario final era operativo y necesitaba que el mobiliario fuera de alto tráfico para uso industrial sin perder lo estético.

Utilizar colores institucionales.

Se les suministro necesidades específicas como electrodomésticos y electrónicos.

Cumplir los lineamientos de la empresa.

Todos los usuarios tenían que tener 1.50cm de largo para trabajar.

En el área de juegos se fabrico todo muy customizado a petición del cliente.

Joyson

Mobiliario

Listado del mobiliario que se integró en el proyecto.

Estaciones de trabajo con mampareria

Estaciones de trabajo con mampareria

Accesorios de cristal

Accesorios de cristal

Mesa de juntas

Mesa de juntas

Mesas de capacitación

Mesas de capacitación

Oficina privada

Oficina privada

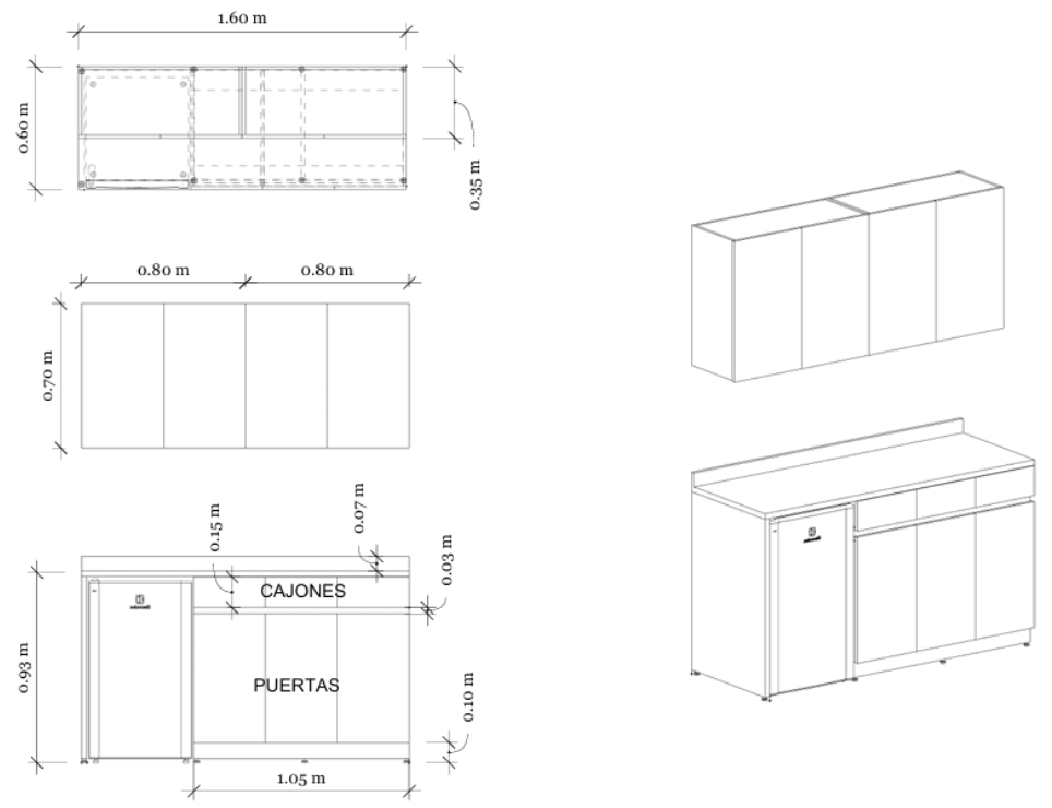
Cocineta

Cocineta

Contacto

Cotiza tu proyecto

Oficinas

Av. José Eleuterio González #202 Col. Vista Hermosa, Monterrey, N.L.

Sucursal Gonzalitos

Horarios

Lunes a Viernes: 9:00hrs a 19:00hrs
Sabado: 10:00hrs a 14:00hrs

Showroom

Inicia tu proyecto con nosotros

Nombre